Home > PRODUCTS > Penstock > Channel >
Rising Stem
Rising Stem
For Water and Wastewater Treatment
ALFA HI-FLOW Channel Penstocks are square or rectangular with resilient sealing on three sides of the slide.
Standard Uni-directional up to and including 1000 X 1000 and bi-directional in larger sizes.
Non-rising stem and closed frame and are designed for open channel installations embedded in concrete
Features
• Lower leakage rate than max. allowable in DIN 19569-4 (class 5)/ AWWA C561-4: 1,20 L/min. per seatingmeter
• Self-supporting closed framedesign
• Self-cleaning guides and slide bearings of HMWPE (high molecular weight polyethylene) reduce the friction during
• operation resulting in easy operation and extended sealdurability
• Self-adjusting “lip-design” sealing of EPDM mounted on the slide offers easy access tomaintenance
• Frame and slide of stainless steel AISI 304 and stem of stainless steel AISI304
• All fasteners of stainless steelAISI 304
• Delivered with handwheel as standard up to and including 1500X1500, in larger sizes withbevelgear
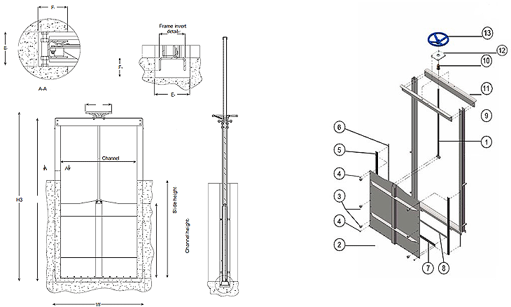
Design Features
| NO. |
Name |
Material |
| 1 |
Frame |
Stailless steel AISI 304 |
| 2 |
Slide |
Stailless steel AISI 304 |
| 3 |
Guide |
HMWPE |
| 4 |
Slide bearing |
HMWPE |
| 5 |
Seal |
EPDM rubber |
| 6 |
Seal retainer |
Stailless steel AISI 304 |
| 7 |
Bottom seal |
EPDM rubber |
| 8 |
Bottom seal retainer |
Stailless steel AISI 304 |
| 9 |
Stem |
Stailless steel AISI 304 |
| 10 |
Stem nut |
Bronze |
| 11 |
Yoke |
Stailless steel AISI 304 |
| 12 |
Stem nut bracket |
Stailless steel AISI 304 |
| 13 |
Handwheel |
Mild Steel |
Dimensions
| General Ref. Nos |
Size(mm) |
W(mm) |
H(mm) |
H3(mm) |
L(mm) |
E(mm) |
F(mm) |
G(mm) |
WGT(Kg) |
| 98-00200-00200 |
200-200 |
371 |
525 |
589 |
80 |
120 |
100 |
225 |
16 |
| 98-00300-00300 |
300-300 |
471 |
725 |
789 |
80 |
120 |
100 |
225 |
22 |
| 98-00400-00400 |
400-400 |
571 |
925 |
989 |
80 |
120 |
100 |
225 |
28 |
| 98-00500-00500 |
500-500 |
671 |
1125 |
1189 |
80 |
120 |
100 |
225 |
35 |
| 98-00600-00600 |
600-600 |
776 |
1380 |
1444 |
90 |
120 |
100 |
225 |
53 |
| 98-00700-00700 |
700-700 |
876 |
1580 |
1662 |
90 |
120 |
100 |
310 |
64 |
| 98-00800-00800 |
800-800 |
976 |
1780 |
1862 |
90 |
120 |
100 |
310 |
75 |
| 98-00900-00900 |
900-900 |
1076 |
1980 |
2062 |
90 |
120 |
100 |
310 |
93 |
| 98-01000-01000 |
1000-1000 |
1176 |
2180 |
2262 |
90 |
120 |
100 |
310 |
107 |
| 98-01100-01100 |
1100-1100 |
1276 |
2415 |
2500 |
110 |
250 |
125 |
410 |
146 |
| 98-01200-01200 |
1200-1200 |
1376 |
2615 |
2700 |
110 |
250 |
125 |
410 |
179 |
| 98-01300-01300 |
1300-1300 |
1476 |
2815 |
2900 |
110 |
250 |
125 |
410 |
198 |
| 98-01400-01400 |
1400-1400 |
1576 |
3015 |
3100 |
110 |
250 |
125 |
410 |
218 |
| 98-01500-01500 |
1500-1500 |
1576 |
3215 |
3415 |
110 |
250 |
125 |
300 |
252 |
| ※ Above sizes & rectangular design upon request. |
Address in Korea :
312-3, Gojan-Dong, NamDong-Gu, Incheon City, Republic of Korea
( Tel : +82-32-442-3093 ~ 4, Fax : +82-32-442-3095 )
Copyright © Since 2012-2025, ALFA Hi-Flow.com (Korea) All right reserved.
TOP